Italiano
Esperti in compravendite e locazioni...

Appartamento con due matrimoniali e garage

145.000 €
90 m2
2 Camere
1 Bagni
Codice
V000548
Città
Mantova
Categoria
Appartamento
Locali
4
Box
1
Piano
1
Classe energetica
D
Stato Immobile
Ristrutturato
Grado
Medio
Lati Liberi
2
Giardino
Comune
Tipo Cucina
Abitabile
Riscaldamento
Autonomo
Tipo Riscaldam.
Caldaia a Condensazione
Tipo Impianto
Radiatori
Raffrescamento
Split
Infissi
PVC Triplo Vetro
Serramenti
Nuovo
Accessori
Aria Condizionata, Doppi Vetri, Fibra Ottica, Porta Blindata, Rete Dati, Ripostiglio, Tripli Vetri, Video Citofono, Zanzariere
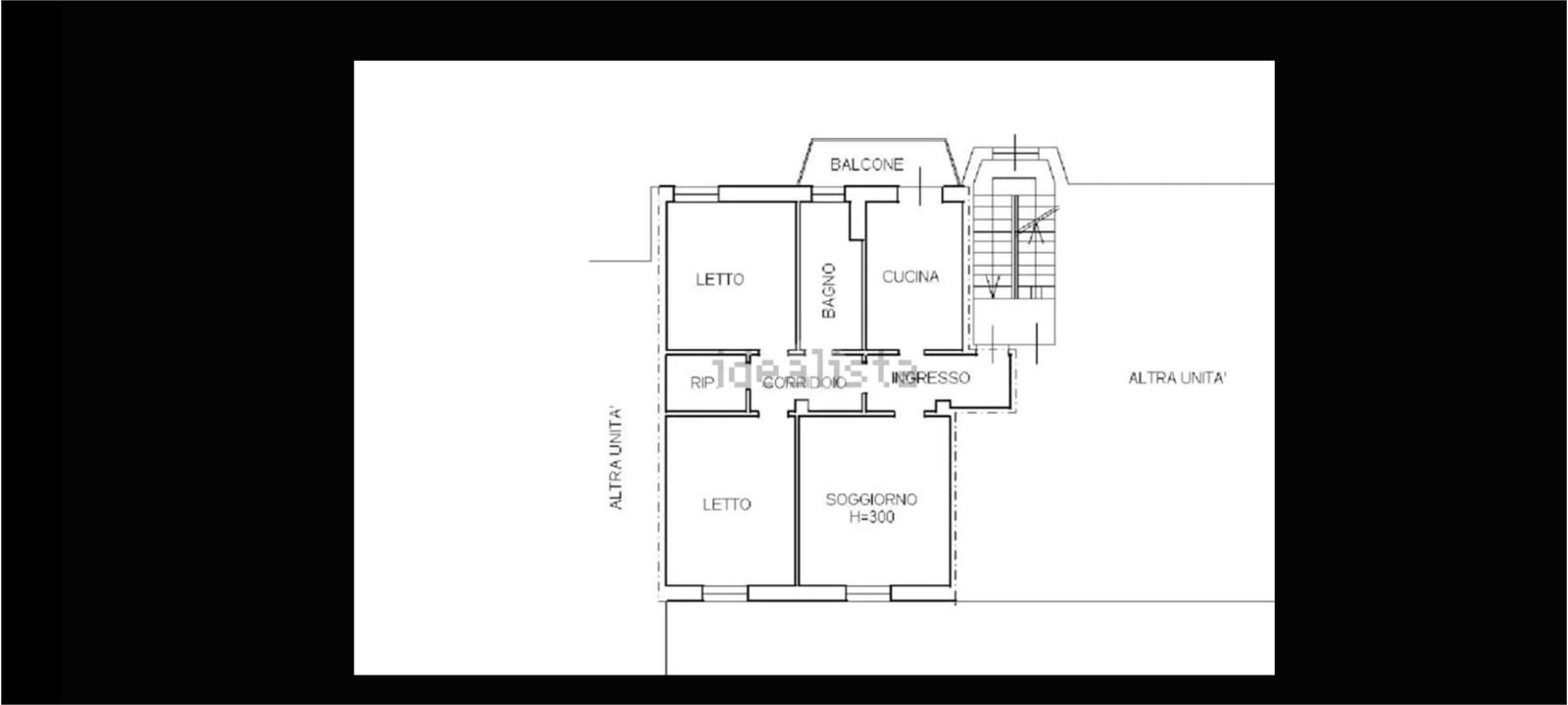
Proponiamo in vendita, zona Borgo Angeli, appartamento con vista lago, posto al primo piano, composto da: ingresso su corridoio, ampio soggiorno, cucina abitabile con balcone e tenda da sole, due camere da letto matrimoniali, ripostiglio e servizio finestrato con vasca e doccia. L'immobile è stato ristrutturato, sono stati rifatti gli impianti elettrico e idraulico, il bagno è stato ristrutturato completamente, sono stati sostituiti gli infissi con triplo vetro PVC, split di ultima generazione con comando da remoto, caldaia nuova, citofono nuovo e nel 2023 è stato rifatto il tetto del condominio. Le spese condominiali includono l'acqua sanitaria. Completano l'immobile il garage e la cantina, e il giardino comune con impianto di irrigazione automatico.

Mappa

VIA PILLA 3/A, Mantova (MN)

Richiedi informazioni

Invia

Condividi

Cookie preference